Описание
Камера работает в следующих режимах:
1. ПОКРАСКА
В камере поддерживается постоянная температура +20≈25⁰С в зависимости от применяемой краски.
2. СУШКА
В камере поддерживается постоянная температура +60≈80⁰С в зависимости от применяемой краски и установленных пластмассовых деталей автомобиля.
3. ПРОДУВКА
Кратковременный режим для удаления из камеры летучих соединений и паров краски, а так же для остывания после сушки
Любые комплектующие в наличии.
*Вентиляционные короба в комплект не входят
Общая мощность 54 кВт
Скорость воздуха 0.25 м/с
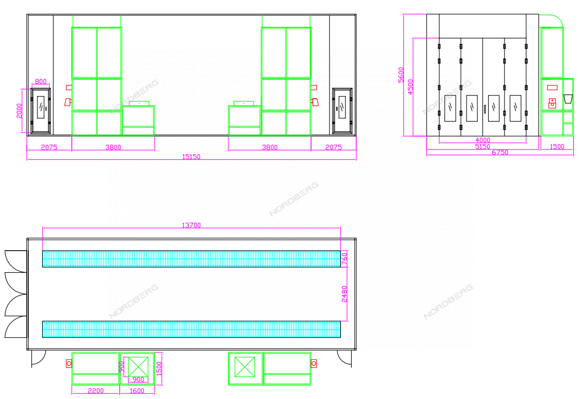
Наружные габариты (ДхШхВ) 15150х6750х5600мм
Внутренние габариты (ДхШхВ) 15000х5000х5000 мм
Электропитание 3x380В, 1x220В, 50Гц
Стекла все стекла закаленные
Въездные аппарели (ДхШхВ) 3000x4000x400 мм (опция)
Потолочные панели утепленные толщина 50мм, наполнитель EPS
Ворота передние въездные складные 4000х4500мм (ширина х высота),
Основание (Опция 12 000$) усиленное металлическое, высота 400 мм, полностью решетчатый пол
Дверь оператора 2 штуки, 800х2000 мм (ширина х высота), закаленные стекла, замок-пневмоклапан.
Фильтрационная система Подготовительный фильтр, потолочный фильтр 600G, напольный фиберглассовый фильтр, угольный фильтр
Конструкция кабины сандвич-панель толщиной 75 мм, шириной 1150 мм, усиленная структура, торцы закрыты металлом, порошковая окраска любой цвет по RAL, наполнитель полистирол (EPS).
Генераторная группа
воздух забирается спереди камеры сверху, выброс отработанного воздуха в центре камеры вверх. Каркас изготовлен из квадратной стальной трубы, снаружи – окраска синяя, внутри гальванизирован
Пульт управления
тумблеры - освещения, режимов окраски, регулятор температуры, таймер, индикатор ошибок, температурный контроллер, выключатель энергии, кнопка аварийного отключения, контроллер времени, ограничитель температуры
Свет
20 шт наклонных потолочных светильника по 4 лампы × 16 Вт в каждом. 16 шт вертикальных настенных светильника по 4 лампы × 16 Вт в каждом. Все светильники покрыты порошковой краской. Светодиодные лампы Philips, освещенность ≥ 800 люкс.
Система нагрева
2 комплекта, горелки 2 шт. RIELLO RG5S топливо - дизель, тепловая мощность: 520000 кКал/ч., 2 теплообменника изготовленных из нержавеющей стали, 2 заслонки с пневматическим приводом для автоматического переключения окраска – сушка, максимальная рабочая температура 80 °C
Вытяжка
Воздухозабор: 2 блока: итого 4шт – центробежный мотор – 7,5кВт в каждом, расширенный, общая воздухопроизводительность 80000м3/ч. Удаление воздуха: 2 блока: итого 2шт – центробежный мотор – 11кВт, ременной привод, общая воздухопроизводительность 70000м3/ч. Воздухозаслонка для регулировки внутреннего давления - ручная.
1. ПОКРАСКА
В камере поддерживается постоянная температура +20≈25⁰С в зависимости от применяемой краски.
2. СУШКА
В камере поддерживается постоянная температура +60≈80⁰С в зависимости от применяемой краски и установленных пластмассовых деталей автомобиля.
3. ПРОДУВКА
Кратковременный режим для удаления из камеры летучих соединений и паров краски, а так же для остывания после сушки
Любые комплектующие в наличии.
*Вентиляционные короба в комплект не входят
Общая мощность 54 кВт
Скорость воздуха 0.25 м/с
Наружные габариты (ДхШхВ) 15150х6750х5600мм
Внутренние габариты (ДхШхВ) 15000х5000х5000 мм
Электропитание 3x380В, 1x220В, 50Гц
Стекла все стекла закаленные
Въездные аппарели (ДхШхВ) 3000x4000x400 мм (опция)
Потолочные панели утепленные толщина 50мм, наполнитель EPS
Ворота передние въездные складные 4000х4500мм (ширина х высота),
Основание (Опция 12 000$) усиленное металлическое, высота 400 мм, полностью решетчатый пол
Дверь оператора 2 штуки, 800х2000 мм (ширина х высота), закаленные стекла, замок-пневмоклапан.
Фильтрационная система Подготовительный фильтр, потолочный фильтр 600G, напольный фиберглассовый фильтр, угольный фильтр
Конструкция кабины сандвич-панель толщиной 75 мм, шириной 1150 мм, усиленная структура, торцы закрыты металлом, порошковая окраска любой цвет по RAL, наполнитель полистирол (EPS).
Генераторная группа
воздух забирается спереди камеры сверху, выброс отработанного воздуха в центре камеры вверх. Каркас изготовлен из квадратной стальной трубы, снаружи – окраска синяя, внутри гальванизирован
Пульт управления
тумблеры - освещения, режимов окраски, регулятор температуры, таймер, индикатор ошибок, температурный контроллер, выключатель энергии, кнопка аварийного отключения, контроллер времени, ограничитель температуры
Свет
20 шт наклонных потолочных светильника по 4 лампы × 16 Вт в каждом. 16 шт вертикальных настенных светильника по 4 лампы × 16 Вт в каждом. Все светильники покрыты порошковой краской. Светодиодные лампы Philips, освещенность ≥ 800 люкс.
Система нагрева
2 комплекта, горелки 2 шт. RIELLO RG5S топливо - дизель, тепловая мощность: 520000 кКал/ч., 2 теплообменника изготовленных из нержавеющей стали, 2 заслонки с пневматическим приводом для автоматического переключения окраска – сушка, максимальная рабочая температура 80 °C
Вытяжка
Воздухозабор: 2 блока: итого 4шт – центробежный мотор – 7,5кВт в каждом, расширенный, общая воздухопроизводительность 80000м3/ч. Удаление воздуха: 2 блока: итого 2шт – центробежный мотор – 11кВт, ременной привод, общая воздухопроизводительность 70000м3/ч. Воздухозаслонка для регулировки внутреннего давления - ручная.
